0

Charmante maison de 123m² au sol 1 sur un terrain de 730 m² a Pontault-Combault

Pontault-Combault (77340)
Réf : 207

Située dans le prestigieux et paisible quartier du vieux Pontault-Combault,

cette maison construite en 1961 repose sur un magnifique terrain arboré de 730 m², un cadre rare et privilégié.

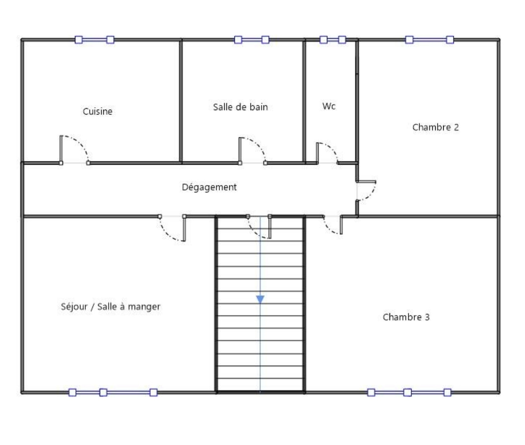
En parfait état d’entretien, cette maison offre 77.14 m² (loi Carrez) habitables, avec une surface au sol de 123 m², complétée par des combles aménageables vous gagner encore 64M² au sol et 22M² loie carrez en plus.

Vous trouverez trois chambres spacieuses, une salle de bains en parfait état, ainsi qu’une cuisine à moderniser.

La décoration, bien qu’inspirée des années 50-70, peut être transformée avec des travaux pour s’adapter à vos goûts contemporains.

De plus, la maison se trouve à moins de 5 minutes des hypermarchés et de toutes commodités, ainsi qu’à moins de 10 minutes des écoles primaires.

Un puits sur place permet le raccordement pour un arrosage automatique ou l’alimentation des sanitaires.

Le chauffage actuel est au gaz, mais une pompe à chaleur est envisageable, avec une isolation à refaire, bénéficiant d'aides de l'État.

Je reste à votre disposition pour un rendez-vous ou pour vous transmettre la vidéo.

Beaucoup de travaux sont à prévoir, mais c’est une opportunité rare avec une construction comme on n’en fait plus actuellement

découvrir le bien
Prix du bien 350 000 €
Pièce(s) 4
Chambre(s) 3

Caractéristiques du bien

Caractéristiques Valeurs
Code postal 77340
Surface habitable (m²) 123,63 m²
surface terrain 730 m²
Surface loi Carrez (m²) 77,14 m²
Nombre de chambre(s) 3
Nombre de pièces 4
Etage 1
Nombre de niveaux 1
Nb de salle de bains 1
Nb de salle d'eau 1
Cuisine Séparée
Mode de chauffage Gaz, Gaz
Type de chauffage Radiateur, Chaudière
Format de chauffage Central, Central
Sous/sol AVEC
Nombre de garage 1
Cave NON
Nombre de parking 2
Année de construction 1961
Terrain arboré OUI

Infos financières

Caractéristiques Valeurs
Prix de vente 350 000 €
Les honoraires d'agence seront intégralement à la charge du vendeur  
Taxe foncière annuelle 1 400 €

Bilans énergétiques

DPE GES
Ce bien vous est proposé par
Ce bien vous intéresse ?
Fieldset par défaut
Fieldset par défaut
Validation

* Champs obligatoires

Contacter l'agence
Validation
Les informations recueillies sur ce formulaire sont enregistrées dans un fichier informatisé par La Boite Immo agissant comme Sous-traitant du traitement pour la gestion de la clientèle/prospects de l'Agence / du Réseau qui reste Responsable du Traitement de vos Données personnelles. La base légale du traitement repose sur l'intérêt légitime de l'Agence / du Réseau. Elles sont conservées jusqu'à demande de suppression et sont destinées à l'Agence / au Réseau. Conformément à la loi « informatique et libertés », vous disposez des droits d’accès, de rectification, d’effacement, d’opposition, de limitation et de portabilité de vos données. Vous pouvez retirer votre consentement à tout moment en contactant directement l’Agence / Le Réseau. Consultez le site https://cnil.fr/fr pour plus d’informations sur vos droits. Si vous estimez, après avoir contacté l'Agence / le Réseau, que vos droits « Informatique et Libertés » ne sont pas respectés, vous pouvez adresser une réclamation à la CNIL. Nous vous informons de l’existence de la liste d'opposition au démarchage téléphonique « Bloctel », sur laquelle vous pouvez vous inscrire ici : https://www.bloctel.gouv.fr Dans le cadre de la protection des Données personnelles, nous vous invitons à ne pas inscrire de Données sensibles dans le champ de saisie libre.
Ce site est protégé par reCAPTCHA, les Politiques de Confidentialité et les Conditions d'Utilisation de Google s'appliquent.

Localisationdu bien

  • Commerces et santé
  • Loisirs
  • Ecoles
  • Transports
  • Pratique