0

Appartement 3 pièces, 60 m² avec 1 place de parking et 1 garage privé

Hoenheim (67800)
Réf : 305

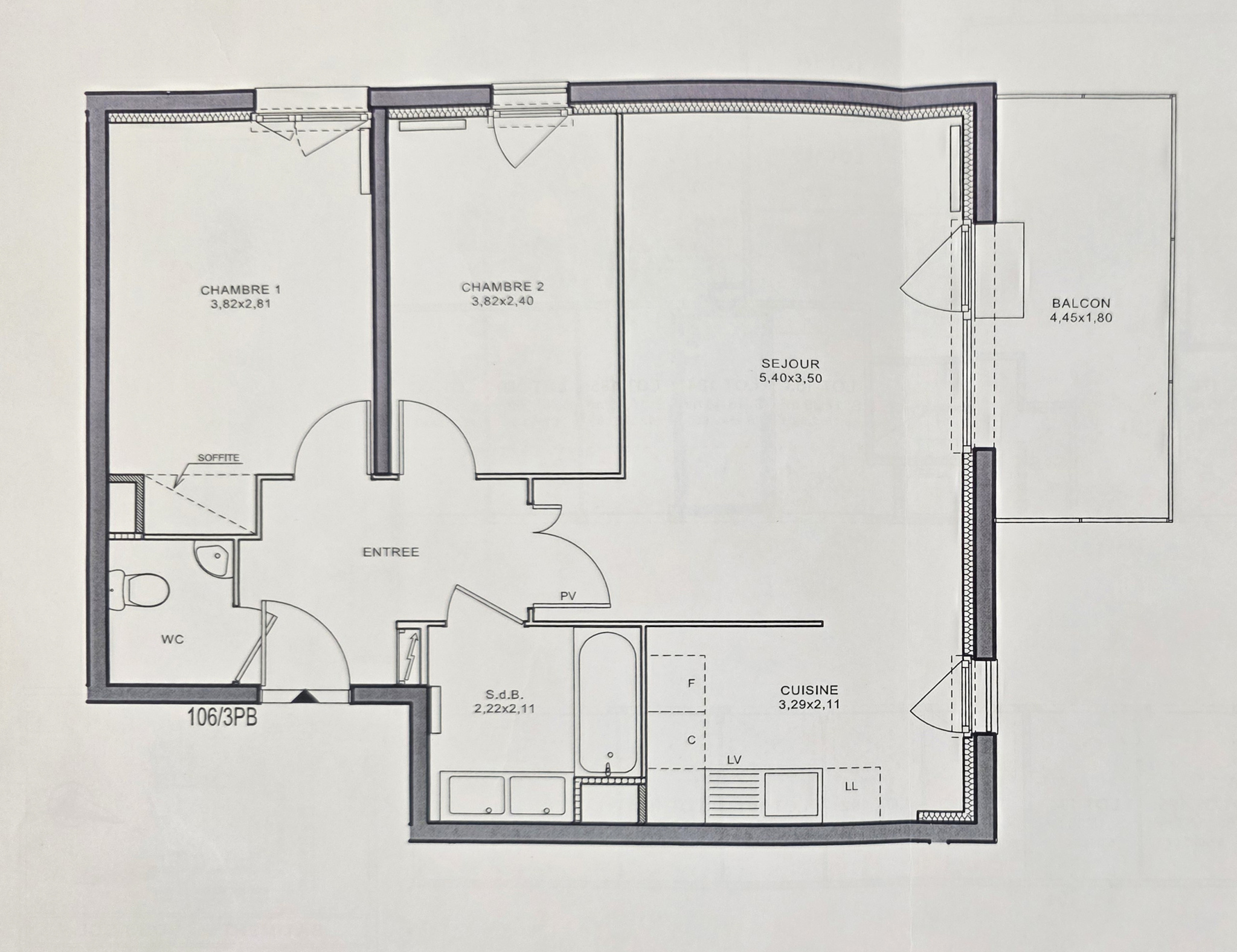
Découvrez cet appartement lumineux de 3 pièces d'une superficie de 60 m². Le bien est agrémenté d'un balcon spacieux de 8 m² idéalement orienté plein sud.

Le logement dispose d'un beau séjour-salle à manger de 20,50 m², de 2 chambres de 11,50 m² et 9,20 m², d'une salle de bains avec baignoire et lavabo et d'un wc séparé. La cuisine, entièrement équipée, offre tout le confort moderne nécessaire pour préparer vos repas.

Avec un Diagnostic de Performance Énergétique (DPE) classé C, cet appartement garantit une consommation énergétique maîtrisée, ce qui se traduit par des charges annuelles estimées entre 370 et 550 €.

Situé au 3ème étage d'un immeuble doté d'un ascenseur, l'appartement offre un accès facile et confortable, rendant les déplacements quotidiens simples et pratiques.

En outre, l'appartement bénéficie d'un grand garage ainsi que d'une place de parking handicapée, offrant ainsi une solution de stationnement pratique et sécurisée.

Ces installations sont situées dans une copropriété avec des espaces verts sécurisés, accessibles par un code d'entrée contrôlé, garantissant ainsi votre tranquillité et votre sécurité. De plus, la proximité immédiate des commerces, des écoles et du tramway facilite votre quotidien, vous permettant de profiter pleinement de tous les avantages de la vie urbaine tout en résidant dans un environnement vert.

.

découvrir le bien
Prix du bien 239 000 €
Pièce(s) 3
Chambre(s) 2

Caractéristiques du bien

Caractéristiques Valeurs
Code postal 67800
Surface habitable (m²) 60 m²
Surface loi Carrez (m²) 60,03 m²
Nombre de chambre(s) 2
Nombre de pièces 3
Etage 3
Nombre de niveaux 4
Ascenseur OUI
Vue Dégagée
Nb de salle de bains 1
Cuisine Américaine
Type de cuisine Equipée
Mode de chauffage Gaz
Type de chauffage Radiateur
Format de chauffage Collectif
Balcon OUI
Nombre de garage 1
Nombre de parking 1
Exposition Sud
Année de construction 2019

Infos financières

Caractéristiques Valeurs
Prix de vente honoraires TTC inclus 239 000 €
Prix de vente honoraires TTC exclus 227 500 €
Honoraires TTC à la charge acquéreur 5,05 %
Charges 209 €
Taxe foncière annuelle 1 018 €

Bilans énergétiques

DPE GES
Ce bien vous est proposé par
Ce bien vous intéresse ?
Fieldset par défaut
Fieldset par défaut
Validation

* Champs obligatoires

Contacter l'agence
Validation
Les informations recueillies sur ce formulaire sont enregistrées dans un fichier informatisé par La Boite Immo agissant comme Sous-traitant du traitement pour la gestion de la clientèle/prospects de l'Agence / du Réseau qui reste Responsable du Traitement de vos Données personnelles. La base légale du traitement repose sur l'intérêt légitime de l'Agence / du Réseau. Elles sont conservées jusqu'à demande de suppression et sont destinées à l'Agence / au Réseau. Conformément à la loi « informatique et libertés », vous disposez des droits d’accès, de rectification, d’effacement, d’opposition, de limitation et de portabilité de vos données. Vous pouvez retirer votre consentement à tout moment en contactant directement l’Agence / Le Réseau. Consultez le site https://cnil.fr/fr pour plus d’informations sur vos droits. Si vous estimez, après avoir contacté l'Agence / le Réseau, que vos droits « Informatique et Libertés » ne sont pas respectés, vous pouvez adresser une réclamation à la CNIL. Nous vous informons de l’existence de la liste d'opposition au démarchage téléphonique « Bloctel », sur laquelle vous pouvez vous inscrire ici : https://www.bloctel.gouv.fr Dans le cadre de la protection des Données personnelles, nous vous invitons à ne pas inscrire de Données sensibles dans le champ de saisie libre.
Ce site est protégé par reCAPTCHA, les Politiques de Confidentialité et les Conditions d'Utilisation de Google s'appliquent.

Localisationdu bien

  • Commerces et santé
  • Loisirs
  • Ecoles
  • Transports
  • Pratique